Начало     Проектирование     Готовые проекты     Изготовление     Информация     График работ     Контакты    

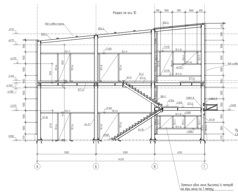
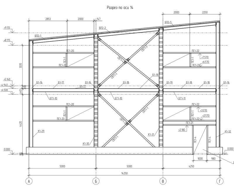
10х36м, 14.1х14м в два этажа. Московская область. Автосервис.

Готовый проект КМ, КМД, КЖ (только перекрытие), ОК1

 

Рассчитан под изготовление на месте - всё на болтах.
Для снеговых районов – III
Для ветровых районов –  I


Общая площадь - 1115 м2
Металлоемкость каркаса  – 60311 кг, 54,1 кг/м2.
Кровля и стены -сэндвич
Фундамент -существующая плита