Начало     Проектирование     Готовые проекты     Изготовление     Информация     График работ     Контакты    

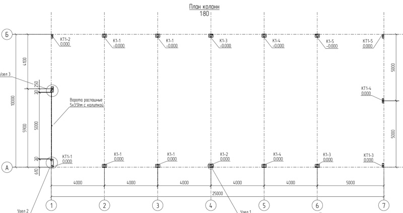
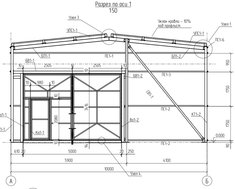
10х25х4м Под профлист (Готовый проект КМ, КМД, КЖ)

 

Рассчитан под изготовление на месте - всё на болтах.
Для снеговых районов – III
Для ветровых районов –  I


Общая площадь - 250 м2
Металлоемкость каркаса  – 8329 кг, 33,3 кг/м2.
Кровля и стены -профлист
Фундамент -плита