Начало     Проектирование     Готовые проекты     Изготовление     Информация     График работ     Контакты    

Типовой проект 20м, высота до 7 метров (Готовый проект КМ, КМД, КЖ)

Возможно корректировка высоты от 6 до 7 (возможно 8-9м, уточняйте по почте) метров, и длины от 18 до 75 метров

Максимальная длина здания - до 75 метров

Максимальная высота - до 7 метров до низа ферм

У готовых проектов уточняйте снеговой и ветровой район перед покупкой!!!

Снеговой район - III, ветровой - III

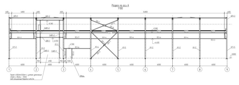
Уклон кровли - 10%.

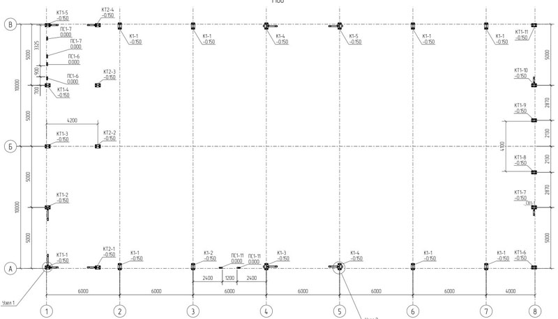
Шаг колонн - 6 метров.

Кран опорный до 10т.

В проекте используется только прокатный профиль из "черного" металла - двутавр, профильная труба, швеллер и т.п..

Соединение всех элементов на болтах. Заводское изготовление.

Остекление ленточное высотой 1000 или 1200мм.

Стены и кровля - сэндвич-панели (возможна "плоская кровля" или сборный сэндвич) или профлист (для холодного здания не учтен расход металла на прогоны по стене).

Ворота шириной до 5.8 м.

Фундамент - столбчатый, возможен свайный.

Опирание колонн на фундамент - на отметке -0.200.

Поли из бетоной армированной плиты. Возможна шлифовка плиты или под асфальт.

Рассчитан под обшивку сэндвич-панелями (или профлист), кровля 150, стены 100мм

Все изменения в готовый проект вносятся за дополнительную плату к стоимости готового проекта!

20х40х7м (Ш-Д-В) 800м2 + антресоль 20х6м (без лестниц), кран на 5т, №211005
Металл - 44350кг, 48,2кг/м2
Стобчатый фундамент, плита: арматура - ...кг, бетон В25 - ...м3

   


 
20х48х7,565м (Ш-Д-В) 960м2, кран на 10т, №220315
Металл - 54560кг, 56,8кг/м2
Стобчатый фундамент, плита: арматура - ...кг, бетон В25 - ...м3

д