Начало     Проектирование     Готовые проекты     Изготовление     Информация     График работ     Контакты    

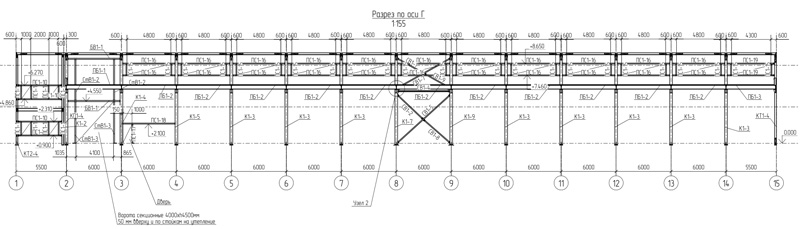
Типовой проект 18м, высота до ~10 метров (Готовый проект КМ, КМД, КЖ)

Возможно корректировка высоты от 6 до 7 метров, и длины от 18 до 83 метров

Максимальная длина здания - до 83 метра

Максимальная высота - до 9-10 метров до низа ферм в зависимости от крана и ветровой нагрузки.

У готовых проектов уточняйте снеговой и ветровой район перед покупкой!!!

Снеговой район - ___, ветровой - ___ (до 9 метров) ___ до 10 метров.

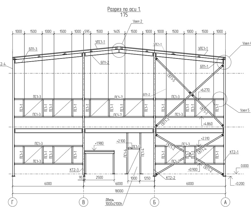
Уклон кровли - 10%.

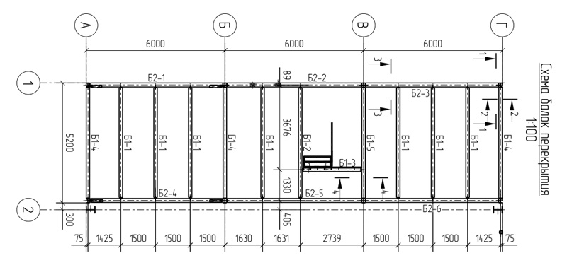
Шаг колонн - 6 метров.

Кран опорный до 5-10т.

В проекте используется только прокатный профиль из "черного" металла - двутавр, профильная труба, швеллер и т.п..

Соединение всех элементов на болтах. Заводское изготовление.

Остекление ленточное высотой 1000 или 1200мм.

Стены и кровля - сэндвич-панели (возможна "плоская кровля" или сборный сэндвич) или профлист (для холодного здания не учтен расход металла на прогоны по стене).

Ворота шириной до 5.8 м.

Фундамент - столбчатый, возможен свайный.

Опирание колонн на фундамент - на отметке -0.250.

Поли из бетоной армированной плиты. Возможна шлифовка плиты или под асфальт.

Рассчитан под обшивку сэндвич-панелями (или профлист), кровля 150, стены 100мм

Все изменения в готовый проект вносятся за дополнительную плату к стоимости готового проекта!

№250307 18х83х8.5м (Ш-Д-В) 1588м2. Два двухбалочных крана по 10т. Металл по КМ- 106948кг, 67,36кг/м2

Есть готовые разделы КМ, КМД, КЖ
Снег IV район, ветер I район. Калужская область