|
|
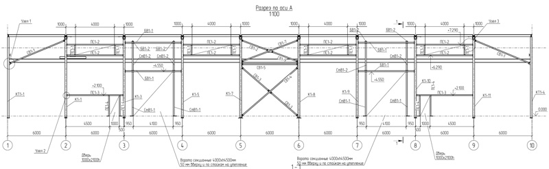
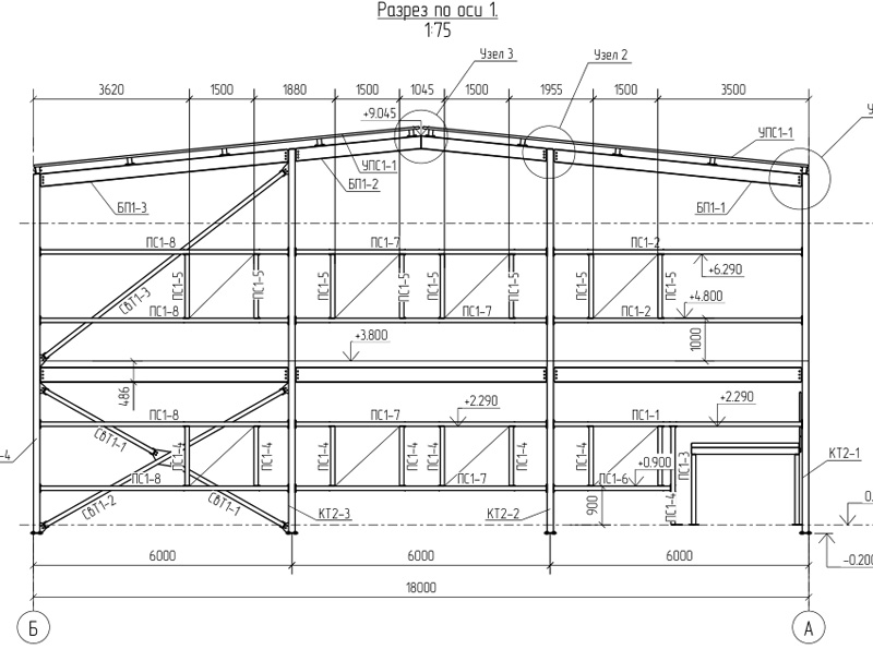
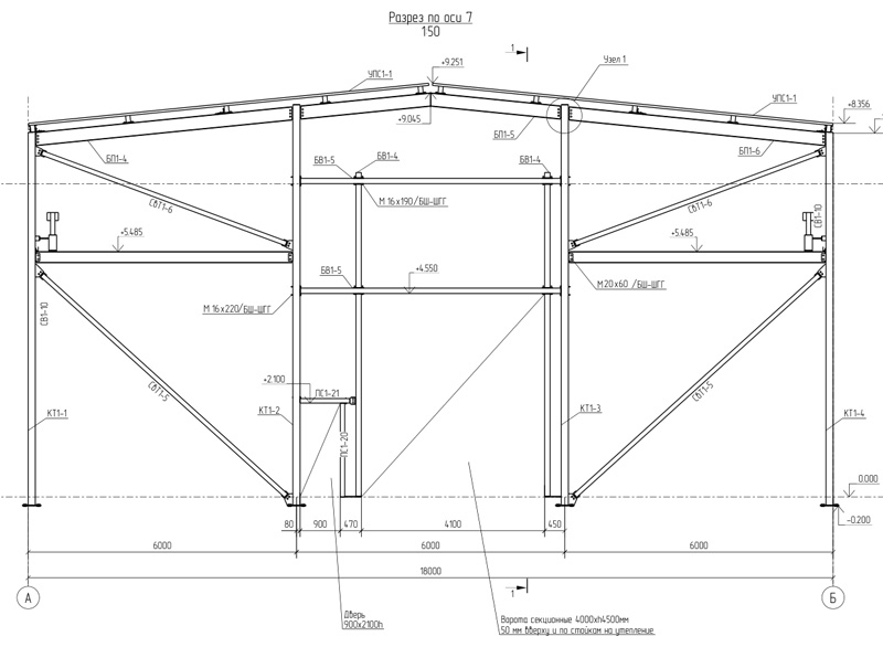
Типовой проект 18м, высота до 7 метров (Готовый проект КМ, КМД, КЖ)
|
Возможно корректировка высоты от 6 до 7 метров, и длины от 18 до 83 метров
Максимальная длина здания - до 83 метра
Максимальная высота - до 7-8 метров до низа ферм
У готовых проектов уточняйте снеговой и ветровой район перед покупкой!!!
Снеговой район - III, ветровой - I (до 8 метров) II, III до 7 метров.
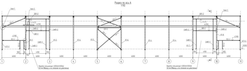
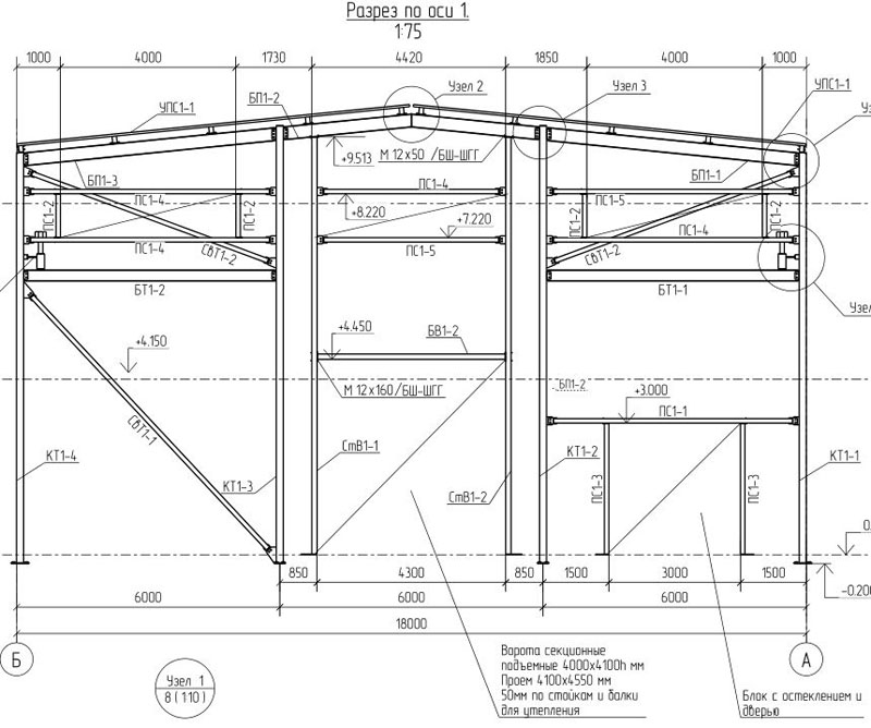
Уклон кровли - 10%.
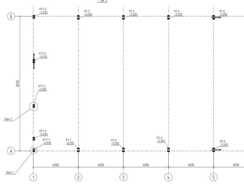
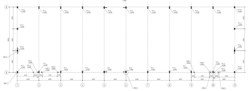
Шаг колонн - 6 метров.
Кран опорный до 5т.
В проекте используется только прокатный профиль из "черного" металла - двутавр, профильная труба, швеллер и т.п..
Соединение всех элементов на болтах. Заводское изготовление.
Остекление ленточное высотой 1000 или 1200мм.
Стены и кровля - сэндвич-панели (возможна "плоская кровля" или сборный сэндвич) или профлист (для холодного здания не учтен расход металла на прогоны по стене).
Ворота шириной до 5.8 м.
Фундамент - столбчатый, возможен свайный.
Опирание колонн на фундамент - на отметке -0.250.
Поли из бетоной армированной плиты. Возможна шлифовка плиты или под асфальт.
Рассчитан под обшивку сэндвич-панелями (или профлист), кровля 150, стены 100мм
Все изменения в готовый проект вносятся за дополнительную плату к стоимости готового проекта!
| №211201 18х60х6м (Ш-Д-В) 1080м2, кран 3,2 т, Металл - 46420кг, 43кг/м2 |
| Есть готовые разделы КМ, КМД |
| |
|
 |
 |
| |
 |
 |
 |
 |
 |
 |
| |
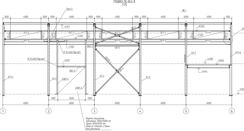
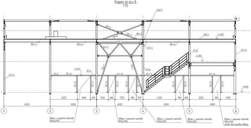
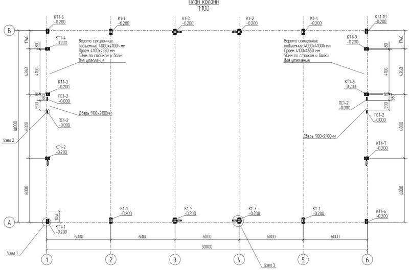
| №220804211201 18х60х7м (Ш-Д-В) 1080м2, кран 5 т, Металл - 46930кг |
| |
| Стобчатый фундамент, плита: арматура - ...кг, бетон В25 - ...м3 |





|

220102кран5т |
| |
| №231225 18х24х4_7м (Ш-Д-В) 432м2, Металл - 13923кг |
| КМ, КМД, КЖ плита пола и фундамент, +АС1 сэндвич-панели и фартуки. Снег -III, ветер -I |
| Стобчатый фундамент, плита |
 |
 |
 |
 |
 |
 |
 |
| |
| №240227 18х30х8м (Ш-Д-В) 540м2 (без учета площади площадки), кран 5 т, Металл - 38900кг |
| Площадка расчитана на 2000кг/м2. По оси Б будет пристройка АБК, поэтому там нет цоколя. |
| Есть проект на АБК 240407_240227 - по КМ - 38862 кг. Два этажа. Готовы -КМ, КМД, КЖ. |
| КМ, КМД, КЖ. Снег -III, ветер -I |
| Стобчатый фундамент, плита, цоколь, перекрытие |
 |
 |
 |
 |
 |
 |
 |
 |
 |
 |
| |
| №231030 18х30х8м (Ш-Д-В) 540м2, кран 5 т |
| Металл - 27525кг |
| КМ, КМД, КЖ. Снег -III, ветер -I |
| Стобчатый фундамент, плита, цоколь, перекрытие |
 |
 |
 |
 |
 |
 |
| |
| №230929 17.76х60х7.5м (Ш-Д-В) 1065м2, кран 3.2 т (ширина здания 17.76м) |
| Металл - 48046кг |
| КМ, КМД, КЖ. Снег -IV, ветер -I Город Пермь |
| Стобчатый фундамент, плита, цоколь, перекрытие |
 |
 |
 |
 |
 |
 |
| |
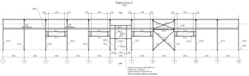
| 240628_220804 18х42x7м Кран 5т Геология заказчика IV I |
| Металл - 35573кг |
| КМ, КМД, КЖ, ОК1 (+5 000 рублей) . Снег -IV, ветер -I Город Иваново |
| Стобчатый фундамент, плита, цоколь, перекрытие |
 |
 |
 |
 |
 |
 |
 |
 |
| |
| |
| 240830_231030 18х66х8 Кран 5т КМ КМД КЖ Раменское |
| Металл - 57173кг |
| КМ, КМД, КЖ, ОК1 (+5 000 рублей) . Снег -III, ветер - I Город Раменское |
| Стобчатый фундамент, плита, цоколь, перекрытие |
 |
 |
 |
 |
 |
 |
 |
 |
 |
| |
| 241127_240830 18х66х7.2 Два крана по 5т КМ КМД КЖ ОК1 г.Екатеринбург |
| Металл - 55530кг |
| КМ, КМД, КЖ, ОК1 (+5 000 рублей) . Снег -III, ветер - II |
| Стобчатый фундамент, плита, цоколь, перекрытие |
 |
 |
 |
 |
 |
 |
 |
 |
 |
 |
| |
| 250203_220804 18х54х7 Кран 5т КМ КМД КЖ ОК1 г.Екатеринбург |
| Металл - 44261кг |
| КМ, КМД, КЖ, ОК1 (+5 000 рублей) . Снег -III, ветер - II |
| Стобчатый фундамент, плита, цоколь, перекрытие |
 |
 |
 |
 |
 |
 |
 |
 |
 |
 |
| |
| 250510_250203 18х36х7 Кран 5т КМ КМД КЖ ОК1. Ленинградская область |
| Металл - 41021кг |
| КМ, КМД, КЖ, ОК1 (+5 000 рублей) . Снег -III, ветер - II |
| Стобчатый фундамент, плита, цоколь, перекрытие |
 |
 |
 |
 |
 |
 |
 |
 |
 |
| |
| |
|
|