Начало     Проектирование     Готовые проекты     Изготовление     Информация     График работ     Контакты    

Типовой проект на плите 18м, высота до 5 метров (Готовый проект КМ, КМД, КЖ)

Может строиться без разрешения на строительство, регистрации, проекта с СРО и без прохождения экспертизы (ограничения см. раздел информация)!

Возможно корректировка высоты от 3 до 5 метров, и длины от 18 до 83 метров

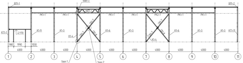
Максимальная длина здания - до 83 метра

Максимальная высота - до 5 метров до низа ферм

У готовых проектов уточняйте снеговой и ветровой район перед покупкой!!!

Уклон кровли - 10%.

Шаг колонн - 4 метра. Шаг колонн торца - 3-4,5м.

В проекте используется только прокатный профиль из "черного" металла - двутавр, профильная труба, швеллер и т.п..

Соединение всех элементов на болтах. Заводское изготовление.

Остекление ленточное высотой 1000 или 1200мм.

Стены и кровля - сэндвич-панели (возможна "плоская кровля" или сборный сэндвич) или профлист (для холодного здания не учтен расход металла на прогоны по стене).

Ворота шириной до 3.6м.

Без цоколя.

Фундамент - плита на подсыпке из песка.

Опирание колонн на фундамент - на отметке верха плиты.

Плита принята переменной толщиной до 30см, бетон В25 армированный двумя сетками. Полезная нагрузка на плиту до 5т/м2.

Возможна шлифовка плиты или под асфальт.

Рассчитан под обшивку сэндвич-панелями (или профлист), кровля 150, стены 100мм

Все изменения в готовый проект вносятся за дополнительную плату к стоимости готового проекта!

18х40х5м (Ш-Д-В) 720м2
Металл - 21500кг, 30кг/м2
Плита: арматура - кг, бетон В25 - м3