Начало     Проектирование     Готовые проекты     Изготовление     Информация     График работ     Контакты    

Типовой проект на плите 18м, высота до 6 метров (Готовый проект КМ, КМД, КЖ)

Может строиться без разрешения на строительство, регистрации, проекта с СРО и без прохождения экспертизы (ограничения см. раздел информация)!

Возможно корректировка высоты от 3 до 6 метров, и длины от 18 до 83 метров

Максимальная длина здания - до 83 метра

Максимальная высота - до 6 метров до низа ферм

У готовых проектов уточняйте снеговой и ветровой район перед покупкой!!!

Снеговой район - III, ветровой - I (Москва и Московская область)

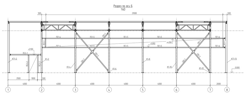
Уклон кровли - 10%.

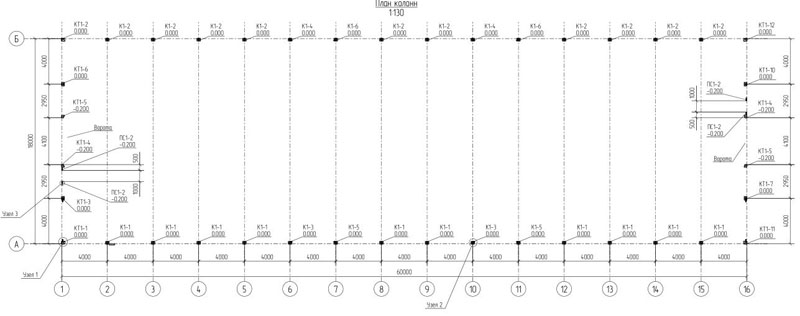
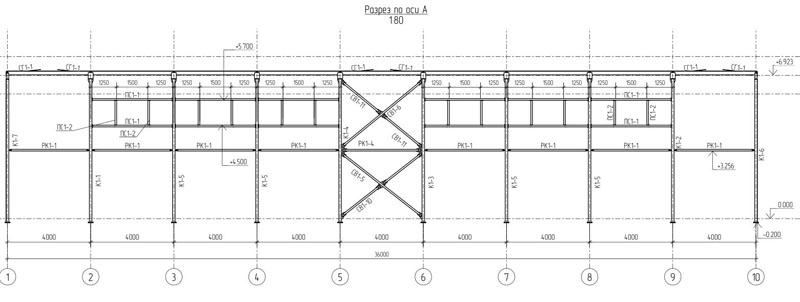
Шаг колонн - 4 метра (новая версия 2021 года). Шаг колонн торца - 3-6м.

В проекте используется только прокатный профиль из "черного" металла - двутавр, профильная труба, швеллер и т.п..

Соединение всех элементов на болтах. Заводское изготовление.

Остекление ленточное высотой 1000 или 1200мм.

Стены и кровля - сэндвич-панели (возможна "плоская кровля" или сборный сэндвич) или профлист (для холодного здания не учтен расход металла на прогоны по стене).

Ворота шириной до 4м. Возможно до 5м за счет уменьшения соседних пролетов до 3.3м.

Без цоколя.

Фундамент - плита на подсыпке из песка.

Опирание колонн на фундамент - на отметке верха плиты.

Плита принята переменной толщиной 20-50см, бетон В25 армированный двумя сетками. Полезная нагрузка на плиту до 5т/м2.

Возможна шлифовка плиты или под стяжку 80мм.

Рассчитан под обшивку сэндвич-панелями (или профлист), кровля 150, стены 100мм

В новой версии 2021 года, был уменьшен шаг колонн до стандартного - 4 метра, что позволило уменьшить нагрузку на плиту и уменьшить массу арматуры. Были упрощены некоторые узлы и элементы, что в целом упрощает изготовление и монтаж.

Все изменения в готовый проект вносятся за дополнительную плату к стоимости готового проекта!

 

18х36х6м (Ш-Д-В) 648м2 №201210_181225 18х36х6 Калужская КМ КМД КЖ 240610

Снег III. Ветер II. Металл по КМ - 21600кг, 33.3

кг/м2

Монолитная ж/б плита переменной толщины
 
18х40х5м (Ш-Д-В) 720м2 №210401 КМ КМД (КЖ нет, но можно быстро сделать)
Снег IV. Ветер III. Металл по КМ - 22404кг, 31.1кг/м2
Монолитная ж/б плита переменной толщины
 
18х32х5м (Ш-Д-В) 576м2 №210401 КМ КМД (КЖ нет, но можно быстро сделать)
Здание холодное,под профлист. Снег III. Ветер II. Металл по КМ - 20098кг, 34.9кг/м2
Монолитная ж/б плита переменной толщины
 
18х60х6м (Ш-Д-В) 1080м2 №230522 КМ КМД (КЖ нет, но можно быстро сделать)
Здание холодное,под профлист. Снег III. Ветер I. Металл по КМ - 30403кг, 28.15кг/м2
Монолитная ж/б плита переменной толщины
 
18х26х5м (Ш-Д-В) - 468м2, г.Ставраполь, III снег, IV ветер 240912
Металл - 17630кг, 37,67 кг/м2
Разделы КМ, КМД, КЖ. Плита: арматура - кг, бетон В25 - м3