Начало     Проектирование     Готовые проекты     Изготовление     Информация     График работ     Контакты    

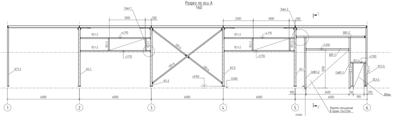
12х30х3 Односкатное (Готовый проект КМ, КМД, КЖ)

 

Рассчитан под изготовление на заводе, всё на болтах.
Для снеговых районов – I,II,III
Для ветровых районов –  I


Общая площадь - 360 м2
Металлоемкость каркаса  –8945кг, 25 кг/м2.
Рассчитан под кровлю и стены из сэндвич-панелей.
Фундамент в виде балки.