|
Типовой проект 24м, высота до 7 метров (Готовый проект КМ, КМД, КЖ)
|
Возможно корректировка высоты до 7 метров, и длины от 24 до 62 метров
Максимальная длина здания - до 62 метров
Максимальная высота - до 7 метров до низа ферм
У готовых проектов уточняйте снеговой и ветровой район перед покупкой!!!
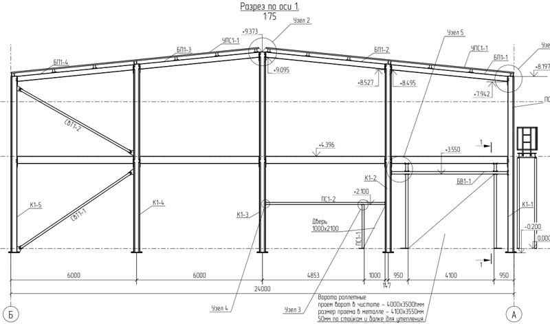
Снеговой район - III, ветровой - III
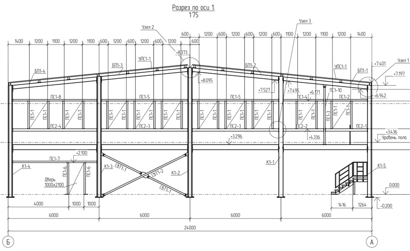
Уклон кровли - 10%.
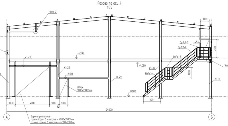
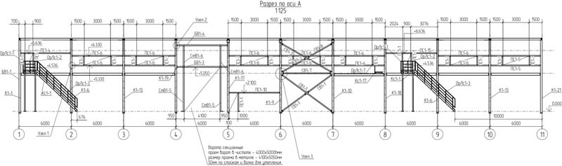
Шаг колонн - 6 метров.
Можно добавить опорный кран до 10 тонн.
В проекте используется только прокатный профиль из "черного" металла - двутавр, профильная труба, швеллер и т.п..
Соединение всех элементов на болтах. Заводское изготовление.
Остекление ленточное высотой 1000 или 1200мм.
Стены и кровля - сэндвич-панели (возможна "плоская кровля" или сборный сэндвич) или профлист (для холодного здания не учтен расход металла на прогоны по стене).
Ворота шириной до 5.8 м.
Фундамент - столбчатый, возможен свайный.
Опирание колонн на фундамент - на отметке -0.200.
Поли из бетоной армированной плиты. Возможна шлифовка плиты или под асфальт.
Рассчитан под обшивку сэндвич-панелями (или профлист), кровля 150, стены 100мм
Все изменения в готовый проект вносятся за дополнительную плату к стоимости готового проекта!
24х60х7м (Ш-Д-В) 1440м2 Без крана (это не готовый проект, а предварительные наработки) |
Металл - 48600кг, 33,8кг/м2 |
Стобчатый фундамент, плита: арматура - ...кг, бетон В25 - ...м3 |
|
 |
 |
 |
 |
 |
24х60х7м (Ш-Д-В) 1440м2 с краном 5 тонн 221016_220714 |
Металл - 64650кг, 44,9кг/м2 |
Стобчатый фундамент, плита пола |




24х60х6м (Ш-Д-В) 1440м2 240117_230807 Без крана КМ, КМД и КЖ, АС1(сэндвич) |
Металл - 48796кг, 33,9кг/м2 |
Стобчатый фундамент, плита пола |






24х60х7м (Ш-Д-В) 1440м2 с краном 5 тонн 230623_221016 |
Металл - 64617кг, 44,9кг/м2 (площадки нет, но добавились окна) |
Стобчатый фундамент, плита пола |
Есть вариант №240227 24х60х7 кран 10т, без окон по оси А и Б, но есть окна на оси 1 и 11 |




24х60х7м (Ш-Д-В) 1440м2 с краном 10 тонн №221016_220714_6 24х60х7 кран 10т |
Металл - 60935кг, 42,3кг/м2 (площадки и окон нет), есть вариант с площадкой в осях 1-2 №221016_220714_6 |
Стобчатый фундамент, плита пола |





24х54х7м (Ш-Д-В) 1296м2 (без учета площадки) с краном 10 тонн №230807_221016 24х54х7 кран 10т.
Снег II (возможно и III, уточню по запросу), ветер III. Площадка под офис. |
Металл - 63124кг, 48,7кг/м2 (без учета площади площадки) |
Стобчатый фундамент, плита пола, цоколь, перекрытие. |






.jpg)


23_7х54х5м (Ш-Д-В) 1279,8м2 (без учета площадки) №231220
Снег III, ветер II. Площадка под офис. |
КМ, КМД, КЖ. Чертежей на лестницу нет. |
Металл - 51150кг |
Стобчатый фундамент, плита пола, цоколь, перекрытие. |










24х60х7м (Ш-Д-В) площадь 2300м2, №240405_240117
Снег IV, ветер II. Санкт-Петербург. |
Готовы - КМ, КМД, ОК1 (сэндвич +10т рублей) |
Металл по КМ - 95312кг, 42кг/м2 |
|







24х48х6м (Ш-Д-В) Без крана. Площадь ~1548м2 (учитывая антресоль). №240422-240405 |
Металл - 65941кг, 42,6кг/м2. г.Воронеж III снег, II ветер. Готовы -КМ, КМД, КЖ, ОК1 (сэндвич +10т рублей) |
Стобчатый фундамент, плита: арматура - ...кг, бетон В25 - ...м3 |








|
|